|
|
Всё про недвижимость
→
Жилая недвижимость Санкт-Петербург
→
Продажа квартир Санкт-Петербург
→
Просмотр объявления
Продажа 2к квартиры ЖК бизнес-класса Самоцветы, Уральская ул 2
Объявление № 71521056
Размещено 01.10.2025
Обновлено: 27.11.2025
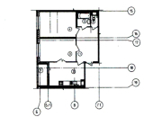
![]() Санкт-Петербург Василеостровская, Василеостровский район Уральская Улица, 2 от метро: 12 минут пешком Общая: 64 м2, жилая: 16 м2, кухня: 32 м2,
этаж: 4 (всего: 11), кол-во комнат: 2 Уральская ул 2, Василеостровский район
Продается уютная 2-комнатная квартира 64 кв.м в ЖК бизнес-класса Самоцветы, кирпично-монолитный дом 2017 года постройки (индивидуальный проект). Этаж 4/11. Все окна выходят в тихий двор на запад. Эргономичные двойные стеклопакеты. Утепленная лоджия. Квартира - 2 евро, одна изолированная спальня 16 кв.м и большая кухня-гостиная 32 кв.м. Дизайнерский ремонт с использованием качественных стройматериалов. Шумоизоляция по потолку всей квартиры, установлены теплые полы. Квартира укомплектована всей необходимой современной бытовой техникой и мебелью. В доме есть подземный паркинг и закрытый паркинг во дворе. Своя детская площадка. Очень хорошие доброжелательные соседи. Консьерж. Вся инфраструктура рядом: детские сады, школы (в том числе математическая школа 18, гимназия 642), радиотехнический колледж, СПБГУ, магазины, кафе, пункты доставки и пр. Прекрасная прогулочная зона вдоль набережной реки Смоленки. До центра города - 15 минут пешком. До метро Василеостровская - 12 минут пешком. Выезд на КАД. До аэропорта 20 минут на автомобиле. Прямая продажа. Один взрослый собственник. Более 5-ти лет в собственности. Подойдут любые формы оплаты. Звоните, расскажу все более подробно! 8921-774-12-78 Наталья
Объект на карте Похожие объявления
|
ИЗБРАННОЕ
В избранном
ничего нет САМЫЕ ПРОСМАТРИВАЕМЫЕ
|
Всё про недвижимость в другом регионе:
показать все
© Всё про недвижимость | allpn.RU 2026





















Общая: 31 м2, жилая: 16 м2, кухня: 8 м2, этаж: 6 из 9
Кондратьевский Проспект, 75к2
Лесная, от метро: 15 минут транспортом 







